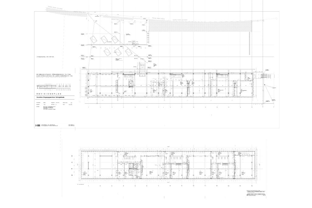
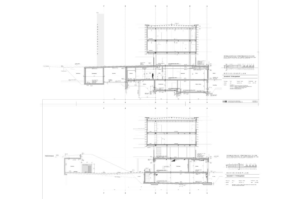
Das Architekturbüro Itten + Brechbühl AG gewann den Architektenwettbewerb für den Neubau der Försterschule mit einer Betonstruktur. Erst in der Umsetzungsphase wurde die Konstruktionsweise auf Wunsch der Bauherrschaft angepasst und ein aussergewöhnlich archaisch anmutender Holzbau entwickelt. Die beiden Untergeschosse nehmen weitaus mehr Fläche ein als der Hochbau. Sie sind teilweise überdeckt, teilweise formen sie einen Tiefhof. Wahrgenommen wird der Schulkomplex als langer, gläserner Riegel, auf den ein auskragender Längs- und vier Quertrakte gesetzt sind: die Schule und das angegliederte Internat. Die Trakte sind mit einer Passerelle verbunden. Anstatt der Betonstützen bilden nun rohe Baumstämme mit einem Raster von 6 x 10 Metern das Traggerüst des Holzskelettbaus. Zangen fassen die Deckenkonstruktion, in die ebenfalls rohe Rundhölzer eingefügt sind. Der Dachrand erscheint flach. Leicht nach innen versetzt erhebt sich jedoch ein leicht geneigtes Sparrendach. Den langgestreckten Schultrakt kennzeichnen Bandfenster. Die Fassaden sind um eine filigrane Gitterstruktur ergänzt, die den Sonnenschutz birgt. Die vier Internatsflügel besitzen horizontal verschalte Wandflächen und geschosshohe Fensterelemente. Nach der Anpassung der Brandschutzvorschriften im Jahr 1994 war diese Überbauung eines der ersten mehrgeschossigen Holzbauprojekte in der Schweiz, für die pionierhaft ein schlüssiges Brandschutzkonzept erarbeitet wurde.
Loderer, Benedikt: Das hölzerne Manifest: die Interkantonale Försterschule in Lyss von Itten + Brechbühl ist ein spannender Holzbau, in: Hochparterre 10/1997, S. 12–17.
Bilder












Pläne








Prozess




