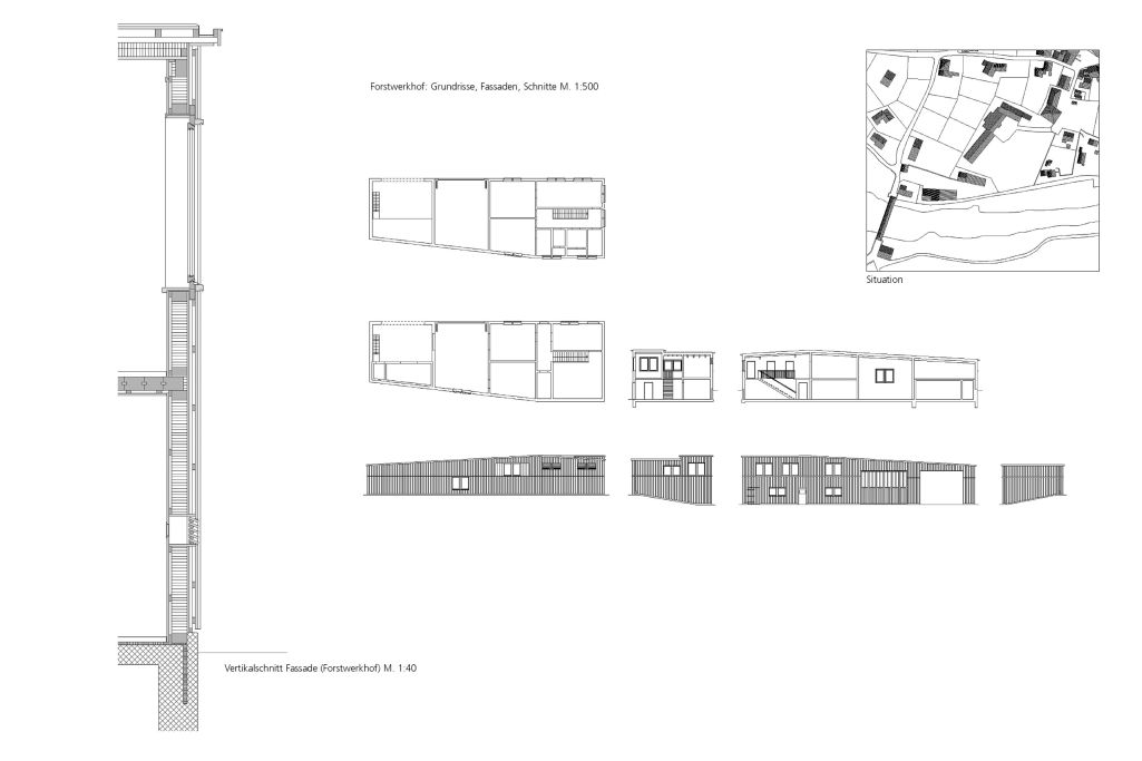
Die beiden Zweckbauten liegen beidseits der Veia da Mulegn, unmittelbar am Rheinufer. Der grössere Bau beherbergt die Feuerwehr und umfasst eine 21 Meter breite, stützenfreie Einstellhalle für die Rettungswagen. Die Hallenbinder lagern auf Holzständerwänden, die mit einer vertikalen, sägerohen Lärchenholzschalung beplankt sind. Die Stossfugen sind mit Leisten überdeckt, sodass sich eine rhythmische Gliederung ergibt. Die grosse Spannweite der Einstellhalle wurde mit Brettschichtholzträgern bewerkstelligt. Lange Fensterbänder und durchfenstere Schiebetore sorgen für eine gute Belichtung der Halle. Das flache Satteldach ist mit Kupferblech gedeckt und kragt auf der Giebelseite kastenförmig aus. An der Nordseite kennzeichnet eine Lukarne die Nebenräume. Der schräg gegenüberliegende, zweigeschossige Forstwerkhof ist deutlich kleiner und beherbergt Werkstätten, Stauräume und einen gedeckten Arbeitsbereich. Die strassenseitige Fassade ist zweckmässig gestaltet: ungleichmässig angeordnete Fenster, verschiedenen Eingänge und zwei grosse Tore sorgen für das Bild des «immer schon Dagewesenen». Gliederung erfährt der Baukörper durch ein in der Höhe gestaffeltes, flaches Satteldach sowie durch hölzerne Gesimse. Ländliche Zweckbauten aus Holz besitzen eine lange Tradition, hier ist der Transfer in die Moderne geglückt.
Rüegg, Arthur; Reto Gadola; Donatus Lauener: Holzbau. Fassaden, Konstruktion und architektonischer Ausdruck. Zürich 2002, S. 64–69.
Bilder















Pläne



