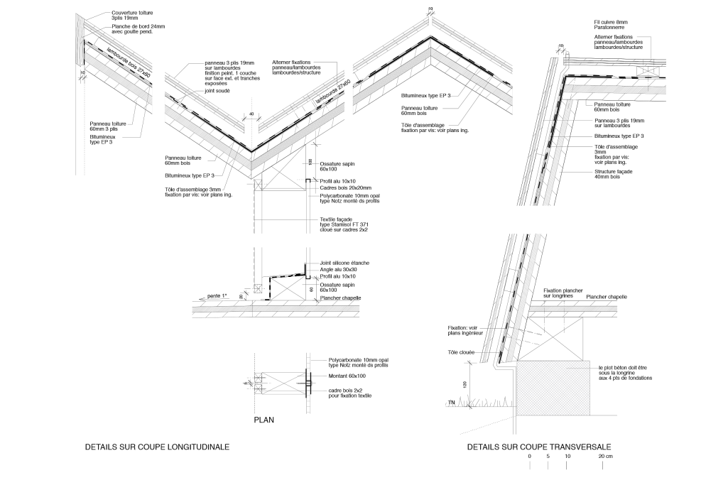
Die Kapelle von Saint-Loup in Pompaples befindet sich auf dem Gelände des gleichnamigen Spitals und Klosters, nördlich von Lausanne. Die Diakonissinnen benötigten einen Raum für den täglichen Gottesdienst, während ihr Mutterhaus und ihre Kapelle saniert wurden. Um dem besonderen Charakter eines Sakralbaus zu entsprechen, suchte das Planungsteam nach einer aussergewöhnlichen Lösung: Inspiration bot ein Projekt über Origamifaltwerke am IBOIS-Forschungslabor der EPFL. Für den temporären Sakralbau war eine Verjüngung sowie eine Überhöhung des Baukörpers im Bereich des Chors gewünscht, die durch Stauchen und Falten der Raumhülle erzeugt wurde. Die Konstruktion besteht aus 40 bis 60 Millimetern dünnen Brettsperrholzplatten, die mit Nagelblechverbindungen zusammengeschlossen sind und durch ihre räumliche Auffaltung die nötige Aussteifung erreichen. Zugbänder im Boden sorgen für die nötige Stabilität. Der minimale Materialaufwand für das Provisorium war nicht nur ein wesentliches Kriterium für die Baukosten, er zeugt auch von einer gelungenen Zusammenarbeit des Planungsteams.
Prix Lignum, 2009 (Anerkennung Region West)
Schärer, Caspar: Origami in Holz – provisorische Kapelle in Pompaples VD von Localarchitecture und bureau d’architecture Danilo Mondada mit Planungsbüro Shel, in: Werk, Bauen und Wohnen 5/2009, S. 12–18. – Kirchliche Bauten: Kapelle Saint-Loup, Pompaples, in: Lignum Holzbulletin 93/2009, S. 20–21. – Buri, Hani; Weinand, Yves: Gefaltet. Chappelle de Saint-Loup, in: nextroom.at (2023). – Schindler, Christoph: Falten für die Kirche. Temporäre Kapelle Saint-Loup, in: nextroom.at (2023).
Bilder






Pläne






