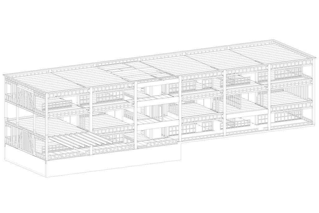
Der Neubau der Schule Nottwil basiert auf einem Wettbewerb im Jahr 2015. Gefordert war ein erweiterbares Gebäude, das in der ersten Bauphase Räume für die Primarschule und den Kindergarten umfasst. Der parallel zum Hang positionierte Riegel ist über zwei mit Lärchenholz belegte Brücken mit dem bestehenden Pausenplatz verbunden und wäre im Nordosten erweiterbar. Der Holzskelettbau besteht aus Brettschichtholz, gefertigt aus heimischen Hölzern und umfasst in Längsrichtung zwölf und in Querrichtung vier Achsen. Die Konstruktion prägt das Erscheinungsbild und gliedert die Fassaden, in die auf der Nordwestseite eine Vorhalle eingeschnitten ist. Der Freibereich setzt sich im 1. Obergeschoss in einer umlaufenden Fensterfront und einer ebenfalls verschalten Brüstung fort. Die Fenster der anderen Geschosse sind mithilfe von feinen Lamellen jeweils in vier Teile gegliedert – das konstruktive Raster und die Gestaltung verschmelzen. Die Innenräume sind mit flexiblen Trennwänden – bestehend aus einer Fichten- und Tannenholz-Dreischichtbeplankung – sowie Oberlichtern ausgestattet. Die Akustikperforierungen der Kastendecken beleben die Räume auf harmonische Weise. Linoleumböden ergänzen das Spektrum an natürlichen Materialien. Das Schulhaus besticht durch seine klare Form und seine äusserst funktionale Disposition, die in der streng gerasterten Holzkonstruktion einen stimmigen Ausdruck gefunden hat.
Prix Lignum 2018, Anerkennung Region Zentrum
Prix Lignum (Hg.): Schulraumerweiterung 2017 Nottwil: Anerkennung Region Zentrum 2018. – Mayer, Lothar. Ein Schulhaus komplett aus Schweizer Holz, in: Forum Holzbau 3/17, S. 8–9. – Pro Holzbau Schweiz GmbH: Neubau Schulhaus Nottwil LU, in: Wir Holzbauer 2017 (online).
Bilder









Pläne





Prozess




