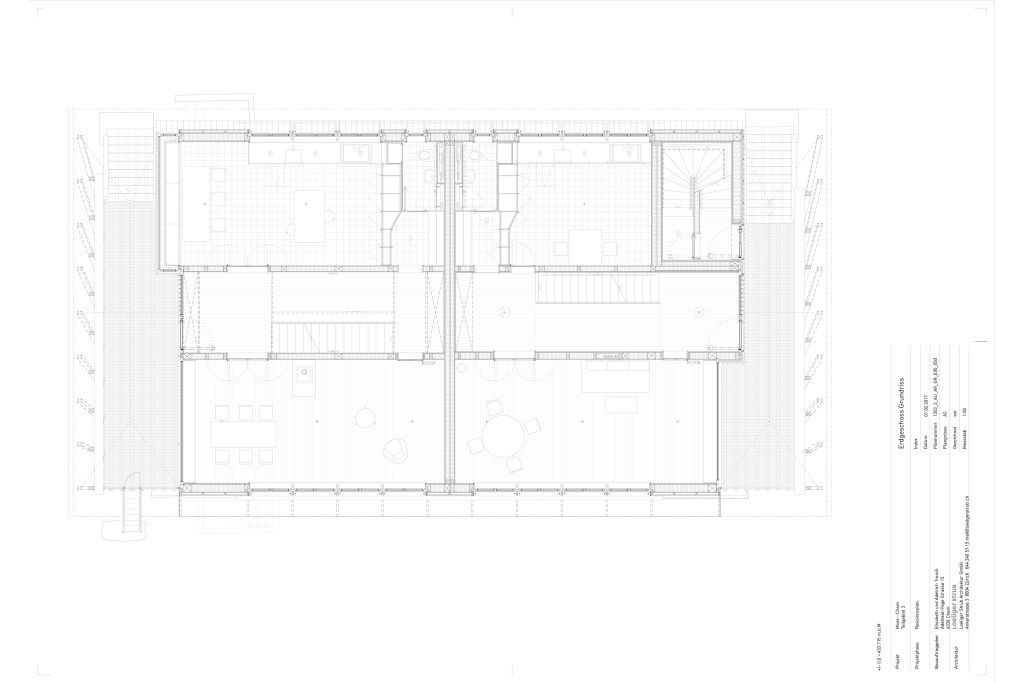
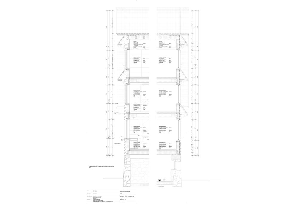
Der Ersatzneubau des Bauernhauses der Hofstatt Moos, die dem Projekt den Namen gab, bildet den Abschluss der drei Bauetappen (Vgl. Überbauung Moos). Die Neugestaltung im Bauensemble der Hofstatt nimmt Bezug auf historische Bauernhäuser, die im Kanton Zug bis weit ins 19. Jahrhundert hinein als Blockbauten mit Klebdächern an den Giebelfassaden und mit Lauben an den Trauffassaden ausgeführt wurden. Die Architekten interpretierten die traditionellen Formen auf zeitgenössische Weise mit aktuellen Bautechniken und Materialien und konzipierten zwei separate Wonungen. Der Ersatzneubau besitzt wiederum ein ziegelgedecktes Satteldach und Klebdächer, der bestehende Sockel wurde aber in Beton ertüchtigt, die Wände wurden in Rahmenbauweise erstellt. Die Erschliessung erfolgt über die Traufseiten, was auf die Lauben Bezug nimmt. Die Erschliessung wird auch als Loggiazone genutzt und ist entsprechend grosszügig, hell und luftig gestaltet. Die Fassaden sind mit einer Stülpschalung verkleidet, die an die Horizontalität des Blockbaus erinnert, jedoch ebenfalls ein modernes Statement setzt. Als vorherrschende Innenwandbekleidung wurden 3-Schichtplatten gewählt, welche zudem der Aussteifung dienen. Die Chamer Neuinterpretation eines Blockbaus ist eine Bereicherung für die Architektur des ländlichen Raums.
Prix Lignum, 20XX: Anerkennung Region Ost
Hochparterre «Die Besten», 20XX: Goldener/Silberner/Bronzener Hase
52 Beste Bauten – Baukultur Graubünden 1950-2000, 2019
Gute Bauten Graubünden, 20XX
Neues Bauen in den Alpen, 19XX
Arc Award, 20XX
BSI Swiss Architectural Award, 20XX
PRIX Meret Oppenheim, 20XX
Atuprix – Auszeichnung Berner Baukultur, 20XX
Premio SIA Architettura, 20XX
Kunz, Gerold: Komplexe Peripherie, in: Karton. 45/2019. – Meyer, Daniela: Die grosse Verkleidung, in: Sonntagszeitung 26.2.2017.
Bilder






Pläne









Prozess
