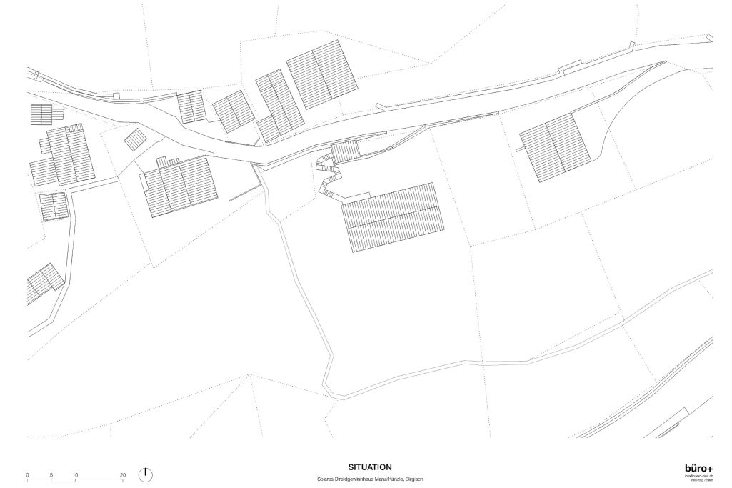
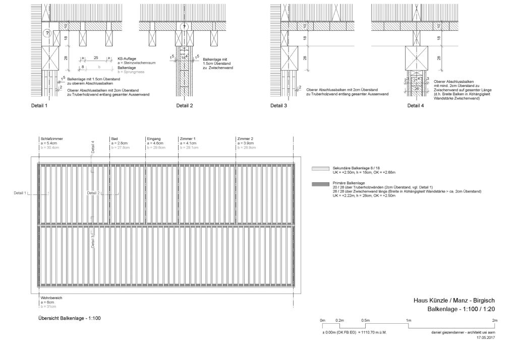
Das solare Direktgewinnhaus gründet auf dem Wunsch der Bauherrschaft, ökologisch und klimagerecht zu bauen. Entstanden ist ein Wohnhaus, das in eindrucksvoller Weise den Low-Tech-Standard demonstriert. Verzichtet wurde zuallererst auf grössere Eingriffe ins Terrain: Ein schmaler Betonriegel fasst den Hang. Das Holzhaus «schwebt» talseits auf einer Kolonnade und bergseits auf einem zusätzlichen Streifenfundament. Die aus lokalem Massivholz (Truberholz) gefertigte Konstruktion ist parallel zum Hang positioniert, der Grundriss in der Mittelachse geteilt: Im südlichen, talseitigen Teil befindet sich ein langer Wohn-Essraum mit grosszügigen Fensteröffnungen, im nördlichen, hangseitigen Teil die Schlafzimmer. Die Aufenthaltsräume werden von einer Balkonschicht flankiert und von einem weit auskragenden Satteldach – Träger der integrierten Photovoltaikanlage – geschützt. Das Dach ist als Kaltdach ausgebildet, der Estrich nur von aussen zugänglich. Das Energiekonzept basiert zudem auf dem Einsatz von Spezialfenstergläsern sowie auf Speichermasse, die in den eng angeordneten Deckenbalken mit den darauf liegenden Kalksandsteinen, dem Unterlagsboden aus Calciumsulfat und den aus Lehmsteinen und Lehmbauplatten errichteten Zwischenwänden vorgehalten wird. Verzichtet wurde hingegen auf eine kontrollierte Lüftung und auf eine Heizung. In längeren Schlechtwetterperioden kann ein Stückholzofen eingesetzt werden. Weniger ist mehr: Das solare Direktgewinnhaus ist ein herausragender Beitrag in Sachen Nachhaltigkeit.
Hohmann, Sven: Wohnhaus in Birgisch. Lowtech dank aktiver Speichermasse und Sonnenenergie, in: baunetzwissen.de (29.7.2024). – Ansichtssachen, in Hochparterre 1–2/21. – Künzle, Marianne; Manz, Ralph (Hg): Solares Direktgewinnhaus. Birgisch 2018.
Bilder
Pläne








Prozess









